Studio D

Studio D combines vintage luxury with seven recording spaces, featuring a 96-channel API Legacy console.

D background image

It’s Like the Ritz-Carlton Meets Moulin Rouge.

With seven recording spaces and three amp lockers, there is something in Studio D for everyone. Red hanging lanterns illuminate the main room, which features dark walnut floors, staggered stone diffusion walls, and interchangeable flutter-free panels. The studio also includes a huge Hidley-designed live chamber, a breathtaking 96-channel API Legacy console (the largest in North America), and the best outboard gear on the planet (see “Equipment List” below).

With deep red velvet walls and vintage, brown leather couches, Studio D’s private lounge provides the perfect space for listening and dining, or can even double as another live room.

  • Notable: 96 input API Legacy Plus w/automation, ATC 300 monitoring
  • Tasks: Tracking, overdubs, mixing, and editing
  • Clients: Kenny Chesney, Kings Of Leon, Reba McEntire, Keith Urban, Brandi Carlile, All Time Low, Punch Brothers, Taylor Swift
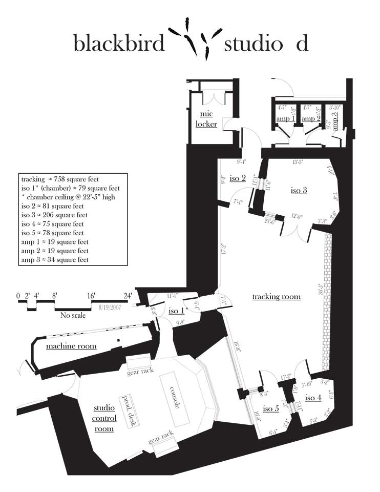
Floor plan of Blackbird Studio D showing tracking room (758 sq ft), five isolation booths (iso 1-5: 79, 81, 206, 75, 78 sq ft), chamber (79 sq ft with 22'-5" ceiling), three amp rooms (19, 19, 34 sq ft), studio control room, machine room with gear rack, and mic closet
Studio D Floor plan

Studio D Equipment List

Here’s what's currently in the room, but don't worry, we have what you need to make your session a success.

  • MIC PREAMPS

    • 2x Chandler Limited EMI TG2 (2-channel)
    • 2x Chandler Germanium
    • 2x Chandler Limited TG Channel Strip
    • 8x Neve 1073
    • 2x Neve 1081
    • 2x Neve 31105
    • 2x Shadow Hills Mono Gama (500 series)
    • 2x API 312 (500 series)
    • 1x GML 8304 (4-Channel)
    • 1x John Hardy M-1 (4-Channel)
    • 2x Telefunken V72
    • 2x Telefunken V76
    • 1x Manley Voxbox
    • 4x Vintech X81
  • EQUALIZERS

    • 2x API 550A (500 series)
    • 2x API 550B (500 series)
    • 2x API 560 (500 series)
    • 1x EMI TG12345 Curve Bender
    • 1x GML 8200
    • 2x Pultec EQP-1A
    • 2x Pultec EQP-1A3
  • DYNAMICS PROCESSORS

    • 1x API 2500 (console compressors)
    • 6x API 225L (console compressors)
    • 2x DBX 160
    • 4x Empirical Labs Distressor (2x EL8-X, 2x EL8)
    • 1x Empirical Labs EL7 Fatso Jr
    • 1x EMI TG12413 (Zener)
    • 2x Neve 33609
    • 1x SSL G384
    • 1x Tube-Tech CL 1B
    • 1x Universal Audio 1176 Blue Stripe (Rev B)
    • 4x Urei 1176LN Black Panel (Rev F)
    • 1x Urei 1178
    • 2x Teletronix LA-2A
    • 2x Urei Teletronix LA-3A
    • 1x Drawmer DS201 Dual Gate
    • 1x SPL Transient Designer (4-channel)
  • EFFECTS / OTHER

    • 1x EMT 140 Stereo
    • 1x Eventide H3000-D/SE
    • 1x Lexicon 200
    • 1x Lexicon 480L
    • 2x Lexicon PCM 42
    • 1x AMS RMX16
    • 2x Yamaha SPX90ii
    • 2x BBE 882i Sonic Maximizer
  • MONITORS

    • ATC SCM300ASL Pro
    • Genelec 1031A
    • Yamaha NS-10m
  • COMPUTERS

    • Mac Studio w/ Pro Tools Ultimate
    • UAD-2 Octo Satellite
  • RECORDERS

    • Avid HDX System
    • 5x Avid HD I/O for 64 analog inputs & 80 analog outputs

Where the legends make records.

Are you ready to make yours in studio D? To book this studio, just click below or call Rolff at (615) 467-4487

Our other studios

  • Studio I

  • Studio H

    Control room with API console and meter bridge, office chair, computer monitor, window to vocal booth showing red curtains, multiple studio monitors including Yamaha NS-10Ms, red and striped acoustic treatment on ceiling, outboard gear rack right.
  • Studio G

    Not available
    Compact control room with tiered production desk holding mixing console and computer monitor, flanked by ADAM ribbon studio monitors, office chair at workstation, beige tufted lounge chair left, large windows with pendant lights, evening view outside.
  • Studio F

    Dolby Atmos mixing room with large console, level meter display, multiple monitor speakers including three soffit-mounted front monitors, surround speakers, display showing Blackbird logo, red carpeted floor.
  • Studio E

    Control room with large console, monitor array including Genelec and Yamaha NS-10Ms, large display showing console image, orange wood acoustic treatment visible right.
  • Studio C

    Wide view of mixing room with digital console on desk, computer monitors, surround speaker array including floor-standing monitors, wooden acoustic treatment throughout, glass panels in ceiling showing acoustic panels above
  • Studio B

    Mixing console with Genelec and Yamaha NS-10M monitors, VU meter bridge, window into wood-paneled vocal booth with microphone visible.
  • Studio A

    Recording studio control room view from mixing console showing symmetrical monitor setup, large window into live room